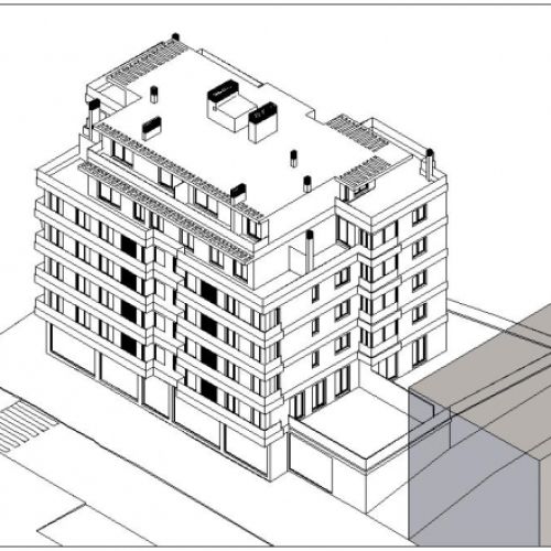
AA-17 ASTILLERO_21 Viviendas, locales y garajes

21 viviendas, locales y garajes en c/ Francisco Díaz Pimienta, El Astillero (Cantabria)

Edificio de 21 viviendas con terrazas y vistas hacia el Parque Natural de Peña Cabarga. Cuenta con locales en planta baja y 2 plantas de garajes.