Trabajos de arquitectura y edificación
JUAN DE HERRERA 2-4
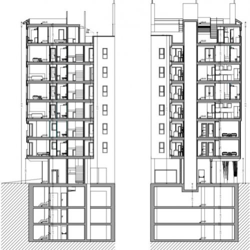
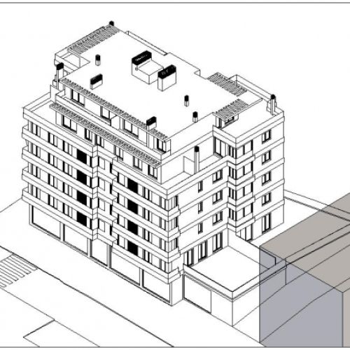
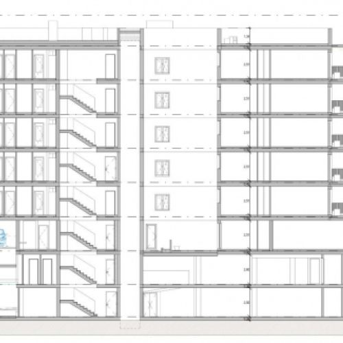
Se ha realizado una rehabilitación de las 3 fachadas del edificio, sustituyéndose la plaqueta de ladrillo en avanzado estado de deterioro por nueva plaqueta cerámica y reparándose los paños dañados de revoco.
La obra también ha contemplado la sustitución de numerosos cargaderos y recercados de los huecos, la reparación y protección de aleros y el pintado.
Los trabajos se han desarrollado entre julio de 2015 y junio de 2016.
Proyectos de arquitectura, urbanismo y edificación
Desde que iniciamos nuestra andadura, en el estudio de arquitectura Tres Estudio Arquitectos hemos llevado a cabo un importante número de proyectos de edificación y urbanismo en diferentes puntos de la geografía nacional y también fuera de nuestras fronteras.
VALCOTOS_Proyecto
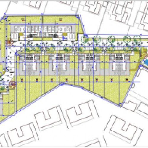
Urbanización de 24 viviendas unifamiliares pareadas en Valdemarín (Madrid)
Proyecto de urbanización de lujo con 24 viviendas unifamiliares pareadas en Valdemarín (Madrid), con muy buenas comunicaciones, en una zona tranquila junto a la A-6. La urbanización cuenta con control de accesos, instalaciones deportivas (piscina, pádel, gimnasio, etc.) y un cuidado diseño de viviendas, vegetación y acabados de urbanización.
MASTER PLAN AA-25 SANTOÑA
Master Plan del área del muelle en Santoña (Cantabria)
Estudio urbanístico de desarrollo de la zona del Muelle de Santoña, un área de oportunidad actualmente abandonada por las industrias conserveras que se establecieros allí el siglo pasado y que hace tiempo se han trasladado al nuevo polígono industrial.
